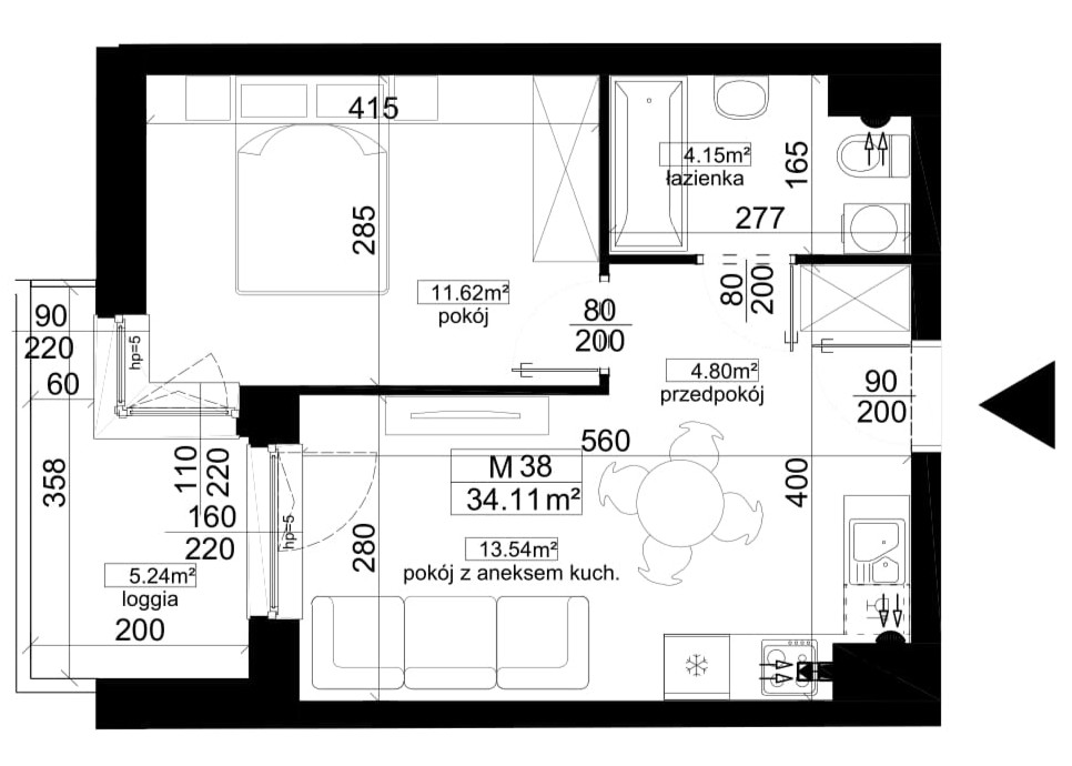
MIESZKANIE 38 Budynek 3

Favourite Favourite Favourite Dodaj do ulubionych
SPRZEDANE

34,11m2

POKOI 2

PIĘTRO 3

Kalaminta

Porosły

Zapytaj o mieszkanie
lub zadzwoń od razu +48 732 787 000
Pokój z aneksem kuchennym

13.54m2

Pokój

11.62m2

Przedpokój

4.80m2

Łazienka

4.15m2

Sprawdź ceny komórek lokatorskich oraz miejsc postojowych

Kliknij, jeżeli interesuje Cię

ZAKUP NA KREDYT

Zobacz mieszkania o podobnym metrażu w innych naszych inwestycjach

Już w sprzedaży
Favourite Favourite Favourite
POKOI: 2 PIĘTRO: 3 LOGGIA: 4,48m2
Favourite Favourite Favourite
48,92 m2

460 000 zł

POKOI: 3 PIĘTRO: 1 BALKON: 15,20m2
Już w sprzedaży
Favourite Favourite Favourite
POKOI: 2 PIĘTRO: 0 OGRóD: 29,15m2
Zobacz więcej podobnych mieszkań