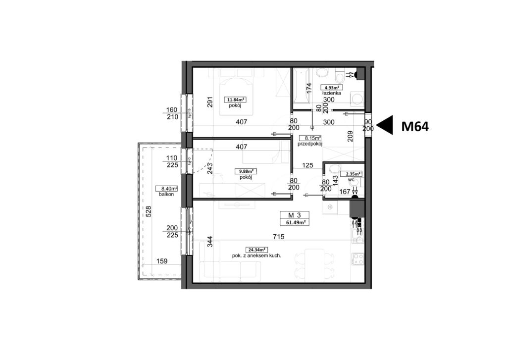
MIESZKANIE 64

Favourite Favourite Favourite Dodaj do ulubionych
SPRZEDANE

60,84m2

POKOI 3

PIĘTRO 3

Mahonia Premium

Porosły / Wierzbowa

Zapytaj o mieszkanie
lub zadzwoń od razu +48 732 787 000
Pokój z aneksem kuchennym

23.94m2

Pokój

11.71m2

Pokój

9.76m2

Przedpokój

8.15m2

Łazienka

4.95m2

WC

2.33m2

Sprawdź ceny komórek lokatorskich oraz miejsc postojowych Zobacz rzut 3D mieszkania Wirtualny spacer 3D Virtual

Kliknij, jeżeli interesuje Cię

ZAKUP NA KREDYT

Zobacz mieszkania o podobnym metrażu w innych naszych inwestycjach

Favourite Favourite Favourite
POKOI: 4 PIĘTRO: 0 OGRóD: 86,70m2
Komórka lokatorska w cenie
Favourite Favourite Favourite
59,43 m2

519 000 zł

POKOI: 3 PIĘTRO: 0 OGRóD: 90,02m2
Favourite Favourite Favourite
65,38 m2

585 000 zł

POKOI: 4 PIĘTRO: 3 BALKON: 3,63m2
Zobacz więcej podobnych mieszkań