Porosły

Lokal usługowy nr 1 Kalaminta

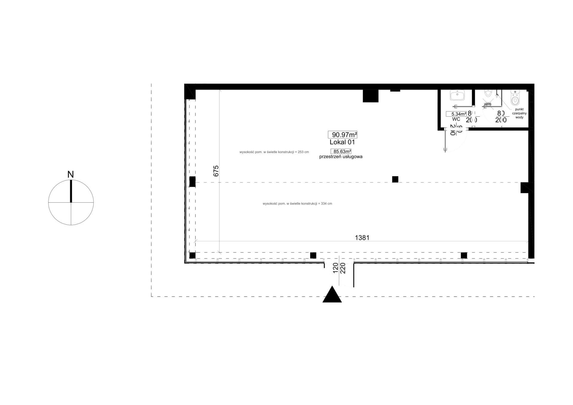
METRAŻ

90.97 m2

Cena do uzgodnienia

Zapraszamy do wynajmu przestronnego lokalu usługowego o powierzchni ponad 90 m², usytuowanego na parterze nowoczesnego budynku wielorodzinnego. Lokal charakteryzuje się doskonałą lokalizacją oraz południową ekspozycją, dzięki której wnętrze jest jasne i dobrze doświetlone przez cały dzień.

Kluczowe cechy lokalu:

  • Powierzchnia: 90,97 m²
  • Poziom: Parter
  • Ekspozycja: Okna od strony południowej
  • Lokalizacja: Budynek wielorodzinny, blisko głównych arterii komunikacyjnych
  • Przestronność i funkcjonalność: Idealne dla różnorodnych działalności usługowych

Lokal ten stanowi doskonałą propozycję dla firm poszukujących reprezentacyjnego miejsca do prowadzenia działalności. Dzięki swojej lokalizacji, jest łatwo dostępny zarówno dla mieszkańców budynku, jak i klientów z zewnątrz.

Lokal zlokalizowany w budynku, którego zakończenie budowy przewidziane jest na styczeń 2027 roku.

Lokalizacja

Porosły, Kalaminta bud. 4

Szczegóły wynajmu

Czynsz

do uzgodnienia

Powierzchnia

90,97 m2

Położenie

parter

Parking

Miejsce naziemne ogólnodostępne

Typ ogrzewania

Kocioł gazowy

Skontaktuj się w sprawie
oferty najmu

Zadzwoń teraz +48 732 787 000
lub napisz do nas Wyślij zapytanie

Zobacz również

Budynek handlowo-usługowy

Porosły / Wierzbowa
METRAŻ

529.28 m2

WYNAJĘTE

Zobacz

Lokal usługowy nr 1 Berberys

Porosły / Wierzbowa
METRAŻ

57.02 m2

WYNAJĘTE

Zobacz

Lokal usługowy nr 2 Berberys

Porosły / Wierzbowa
METRAŻ

75.54 m2

WYNAJĘTE

Zobacz
Zobacz wszystkie